대통령소속 국가건축정책위원회 뉴스레터 03월호
2021년 03월 15일 발행
현장 기사

집의 따뜻함이 깃든 신길중학교

(주)이집건축사사무소 이현우 대표

[사이좋은 이웃처럼 옹기종기 모인 신길중학교 전경] [사이좋은 이웃처럼 옹기종기 모인 신길중학교 전경]

※ 본 원고는 2021년 9월 건축공간연구원에서 발간한 「건축과 도시공간」 제43호 장소탐방에 필자가 작성한 '신길중학교'에서 발췌한 내용이 포함되어 있음

개요

- 프로젝트명: 신길중학교
- 설계사무소명/건축가: (주)이집건축사사무소/이현우
- 발주청: 서울특별시 남부교육지원청
- 위치: 서울특별시 영등포구 신길로28길 43
- 용도: 교육연구시설(일반공립중학교)
- 대지면적: 9,999.20m2
- 건축면적: 4,414.14m2
- 연면적: 9,859.01m2
- 층수: 지하 1층, 지상 4층
- 건폐율: 44.14%
- 용적률: 95.48%
- 설계 기간: 2018년 5월 ~ 2019년 2월
- 시공 기간: 2019년 5월 ~ 2021년 2월
- 수상: 2021년 대한민국 공공건축상(최우수상), 2021년 대한민국 우수교육시설(최우수상)

거대한 고층아파트 속 작고 낮은 학교를 계획하다

과거 신길동은 빌라촌과 단독주택이 밀집되어 있는 지역이었다. 1990년대까지 달동네가 있었던 곳이며 드라마의 배경장소로 종종 등장하기도 했다. 이곳은 해방 이후 군인들이 거주하고 주둔했던 지역으로서 한때는 공군·해군본부를 위시한 군인시설의 요람이었다. 그래서 학교 부지의 북쪽에는 해군 군인아파트인 '바다마을 아파트'가 있고 그 뒤쪽으로 해군회관이 자리하고 있다. 2006년경부터 시작된 신길뉴타운 사업이 진행되면서 이 지역의 모습은 급변하기 시작하였다. 대규모 단지의 고층아파트가 들어서면서, 많은 주민들이 유입되기 시작하였다. 신길중학교는 중학교가 없었던 이 지역주민들의 오랜 노력과 염원에 힘입어 어렵사리 신설이 확정되었다.
학교 부지는 신길뉴타운 재정비촉진계획에 의해 신길7구역의 기부채납으로 확보되었다. 어렵게 마련된 부지인 까닭에 크기나 형태 등의 불리한 조건을 따질 형편이 아니었을 것이다. 학교 부지는 고층아파트가 전후좌우의 4면을 에워싸고 있으며, 학교 건물을 배치하기에 다소 애매한 폭과 비율의 기울어진 사각 형태를 가지고 있었다. 남측의 전면도로와 학교 부지의 사이 공간은 연결녹지로 지정되어 있어 이곳에서의 보행이나 차량 출입은 제한되어 있었다. 또한 부지는 경사진 연결녹지를 사이에 두고 전면도로보다 2~3m 정도 높았고, 북쪽에 인접해 있는 아파트 부지의 레벨이 더 높아 1단 내지 2단의 옹벽이 설치되어 있었다. 이에 따라 책정된 학교 공사비 내에서 이 옹벽을 전면적으로 재설치해야 하는 공사비 부담이 있었다. 이러한 여건 속에서 신길중학교는 24개 학급과 1개의 특수학급 규모인 일반 공립중학교로서 2018년에 설계공모를 통해 계획이 시작되었다.

[고층아파트 옆에 낮게 펼쳐진 신길중학교 전경] [고층아파트 옆에 낮게 펼쳐진 신길중학교 전경]

신길중학교의 설계 방향은 학교 부지를 둘러싼 주변 환경으로부터 자연스럽게 도출되었다. 학교 부지를 둘러싼 주변의 장소적 특징이 너무나 뚜렷했기 때문에 선택할 수 있는 여지가 별로 없어 고민거리가 많지 않았다. 신길중학교는 신길뉴타운 가운데에 입지하고 있으며, 학교 주변을 20층 이상 규모의 여러 고층아파트가 둘러싸고 있다.
이곳의 학생들은 이와 같은 획일적이고 거대한 도시스케일의 아파트에서 살아간다. 그래서 학교는 이와 반대로 집보다 더 '집'처럼 위압적이지 않으면서 작고 낮은 모습이길 바랐다. 학생들에게 잊혀진 또는 경험하지 못한 집의 아담하고 친밀한 감성을 불러일으키는 학교 공간을 만들어주면 좋겠다고 생각하였다.
학교는 기능 중심적인 공간이 아니라 집과 같이 정서적인 편안함을 주는 생활공간이라는 점에 중점을 두었다. 그래서 그 '집'의 모습은 학생들이 지금 살고 있는 '아파트'가 아니라 신길뉴타운이 들어서기 이전의 마을처럼 오밀조밀한 건물과 마당이 어우러진 우리 기억 속의 원초적인 집의 모습으로 계획되었다.

집과 같이 편안하고 따뜻한 학교를 조성하다

우선 학교를 휴먼스케일의 '집' 크기로 잘게 나누었다. 교실 하나를 한 채의 집으로 보았다. 학교는 교실을 하나의 기본 모듈로 가진다. 학교의 조직 구성 및 프로그램을 비롯하여 현실적인 경제성과 시공성을 고려했을 때, 교실은 설령 크기나 형태는 바뀌더라도 일정 부분 지속될 수 밖에 없는 학교의 기본 모듈이다. 등교하는 학생들을 맞이하는 것은 운동장을 지나 도달하는 박스형의 4층 건물이 아니라 사이좋은 이웃처럼 옹기종기 모인 아담한 집의 모습을 하고 있다. 거대한 사각 매스의 아파트에 사는 학생들에게는 오히려 생소한 스케일의 흥미로운 느낌으로 다가갈 것이다. 실제로 이러한 건물 모습은 공사 현장 앞을 오가던 대다수의 행인들이 이 건물의 용도가 학교라는 것을 전혀 예상하지 못할 정도로 반전을 주었다. 행여 건물의 정체를 알고 있는 주민들도 신기한 듯 현장 앞을 오가며 시선을 떼지 못했다. 주변과 대비되는 학교의 모습은 우리 기억 속의 원초적인 집에 대한 감각을 더욱 극대화하여 소환한다.

[휴먼스케일의 집과 같은 규모로 지어진 신길중학교 정면] [휴먼스케일의 집과 같은 규모로 지어진 신길중학교 정면]

또한 집합체로서의 학교는 다채로운 모습을 가지도록 하였다. 개개인의 개성과 창의력이 발현되는 중학생들에게 특히 '개별성'과 '다양성'은 중요한 가치를 지닌다. 학교가 거대한 단일 매스나 2~3개의 매스로 이루어지는 것이 아니라, 개별적인 집들의 집합체인 마을처럼 조화로운 동시에 다양한 모습을 가지도록 한 것도 이러한 이유이다. 삼각지붕 형태의 집도 있고 평지붕 형태의 집도 있다. 교실의 천정도 평천정과 박공천정이 섞여 있어 일률적이지 않다. 마감재에도 변화를 주었다. 붉은 점토벽돌과 백색의 외단열시스템, 탄화코르크보드, 시멘트벽돌 등의 마감재는 몇 가지 타입의 형태와 조합되어 다채로운 풍경을 연출한다. 마치 마을과 같은 다채로움은 주변 아파트와 대비되어 낯설면서도 친숙한 풍경을 만들어낸다. 이와 같은 다양성은 학생 개개인의 개성과 차이를 존중하는 학교 공간을 표현한 것으로서, 이는 지금 우리 사회에 필요한 중요한 가치라고 생각한다.

[다채로운 마감재료와 지붕형태의 변화] [다채로운 마감재료와 지붕형태의 변화]

기존의 전형적인 학교는 운동장과 교사동이 분리되어 있는 이분화된 공간구조를 가진다. 4층에서 공부하는 학생들은 쉬는 시간에 4개 층을 뛰어 내려가야 하므로 운동장에 나가는 것을 포기하게 된다. 신길중학교에서는 감수성이 풍부한 중학생들이 쉬는 시간에 좁고 긴 복도에 웅크리고 앉아 시간을 보내는 일이 없도록 공간을 설계하였다. 문을 열면 바로 앞에 위치해 있는 마당으로 나가 자연과 교감할 수 있는 다양한 중정을 곳곳에 배치하였다. 학생들이 교실 및 복도와 도서실에서 문을 열면 햇볕을 쬐고 바람을 쐴 수 있는 마당으로 나가길 바랐다. 마당을 끼고 있는 집처럼 교실 사이사이에 만들어진 작은 마당에는 자작나무, 대나무, 낙엽수, 꽃나무 등도 심어 놓아 아이들이 학교 안에서도 계절의 변화를 느끼고 하늘을 볼 수 있다. 학교 건물이 교실 크기로 나뉘어 있는 것처럼 중정들도 단독주택의 마당 정도 크기로 나누어져 있다. 그리고 옥외공간은 넓은 문과 투명한 창 또는 폴딩도어로 내부와 연계되고 확장된다. 켜켜이 중첩되어 배치된 중정과 내부공간은 내·외부의 경계를 느슨하게 한다. 또한 실내와 중정을 가로지르는 순환동선은 학생들에게 각기 다른 공간 체험을 제공한다. 이와 같은 장치들은 개방성과 동시에 사각지대가 생기지 않도록 하여 안전한 학교생활을 돕는다. 뿐만 아니라 아파트에 사는 학생들에게 집의 마당과 같은 아늑하고 친밀한 감성을 불러일으킨다.

[복도에서 출입할 수 있는 다양한 중정]

[복도에서 출입할 수 있는 다양한 중정]

[복도에서 출입할 수 있는 다양한 중정]

[복도에서 출입할 수 있는 다양한 중정]

[각 층에서 출입할 수 있는 옥상마당]

[각 층에서 출입할 수 있는 옥상마당]

[각 층에서 출입할 수 있는 옥상마당]

학교에서 옥상공간의 이용에 대한 제안은 쉽게 수용되거나 구현되기 어려운 과제이다. 학교 옥상은 안전상의 문제로 늘 잠겨있는 것이 현실이다. 최근에는 사용자 참여 설계를 통한 학교 공간 혁신사업을 통해 옥상공간을 잘 활용한 사례도 있지만 충분한 높이의 안전펜스가 설치된 옥상조경이 조성된 경우에도 선뜻 개방을 꺼린다. 안전과 보호를 위해 가능하면 모든 학생들을 한 시야에 모으는 것을 원하기 때문이다. 이는 학교가 감옥과 유사한 구조를 가지는 이유이다. 신길중학교는 테라스하우스와 같이 옥상공간이 사각지대에 놓이지 않고 각층에서 바로 접근할 수 있으며, 교무실이나 교실에서 항상 관찰되기 때문에 이러한 우려를 없앨 수 있는 공간구조를 가지고 있다.
기존의 전형적인 학교는 폐쇄적인 공간과 일차원적인 단일동선을 가지는 반면 신길중학교는 내·외부 또는 위·아래로 막힘이 없는 다양한 순환동선을 가진다. 각 층의 내·외부를 가로지르는 순환동선은 마치 마을의 아기자기한 골목길과 같다. 학생들은 중정을 가로질러 건너편 홈베이스나 교실로 이동할 수 있고, 옥외계단을 이용해 각층의 옥상마당을 오르내릴 수 있다. 내·외부에 계단과 복도가 많아 학생들은 다양한 경로를 선택하여 오밀조밀 다니며 재미있게 생활할 수 있다. 그리고 그러한 경로는 주변으로 열려 있어 항상 밝고 안전하다. 이와 같이 획일적이지 않은 동선과 개방성은 학생들에게 학교생활에서 다양한 이야기와 각기 다른 체험과 상상력을 불러일으킨다. 다만, 양쪽으로 중정과 면한 2층의 가운데 켜 전체가 처음 설계안에서는 벽체 없이 열려진 홈베이스였는데, 일부분이 벽으로 막힌 교실로 변경된 점은 아쉬움으로 남는다.

[내·외부의 다양한 동선]

[내·외부의 다양한 동선]

[내·외부의 다양한 동선]

[중정으로 열려있는 내부공간]

[중정으로 열려있는 내부공간]

[중정으로 열려있는 내부공간]

신길중학교는 지역 커뮤니티와의 연계를 위한 층별 조닝이 되어 있다. 2층 이상은 교실 등이 위치해 있는 학습공간이고, 1층은 학생, 교사, 학부모, 주민들의 소통과 교류를 목적으로 하는 모두를 위한 포디움 공간이다. 도서실을 중심으로 시청각실과 동아리실, 식당, 행정지원실 등이 배치되어 있다. 층별 조닝으로 시간대별 운영방안에 따라 적절히 분리 및 연계가 이루어질 수 있다. 포디움의 복도와 실들 사이사이에 배치된 크고 작은 중정들은 햇볕을 쬐고 바람을 쐴 수 있는 숨구멍이 된다. 이곳은 이야기를 나누거나 쉴 수 있는 모두를 위한 공간으로 실내와는 투명한 유리로 열려 있다.

[개방적인 교사연구실 내부 전경] [개방적인 교사연구실 내부 전경]

[높은 천정의 일반교실 내부 전경] [높은 천정의 일반교실 내부 전경]

협력과 소통으로 새로운 형태의 학교건축을 구현하다

설계 중에 각종 현안들을 풀어가는 과정에서 일반적으로 교육계는 보수적이고 권위적일 것이라는 선입견과는 달리 실제로는 의외로 진취적이고 전향적인 이들도 많다는 점을 느낄 수 있었다. 과거와 비교하면 상당히 고무적인 변화이고 앞으로 공공건축물 발전의 긍정적인 신호이다. 학교 공간의 구조 유형으로서 전례가 없다는 것은 사업을 책임지는 담당 교육청의 입장에서는 상당한 부담으로 다가와 종종 당초 공모안의 변경으로 이어진다. 하지만 신길중학교의 경우 교육청 내부에서 오히려 건축가를 독려했고 계획안이 제대로 구현될 수 있도록 많은 노력을 기울였다. 물론 이견도 있었고 변경된 부분도 많았다. 교실의 박공 형태의 천정은 높은 층고에 따른 열 환경에 대한 의문이 제기되었지만 다행히 학계 건축환경연구실의 시뮬레이션을 통해 그 적합성이 확인되었다. 다만, 삼각지붕 공간을 실내공간으로 충분히 활용하지 못하고 박공천정 꼭짓점의 높이가 3.6m로 축소된 점은 아쉬운 부분이다.
학교설계에서 안전에 대한 문제는 항상 뜨거운 감자이다. 학생들의 안전 문제는 너무나 당연한 고려사항이지만 과다한 우려와 방지책은 학생들이 충분히 누릴 수 있는 자유와 혜택을 제약하게 된다. 학생들이 일상에서 맞닥뜨리는 학교 밖의 환경과 달리 유독 눈높이보다 높은 학교난간 등이 그 예일 것이다. 역설적이지만 가장 안전한 공간은 감옥이다. 학교건축에서의 크고 작은 시도가 반대에 부딪히는 가장 흔한 이유는 학생들의 안전에 대한 과다한 걱정 때문이다. 조금 더 거시적인 관점에서 학생들에게 더욱 중요한 사항이 무엇일지에 대한 고민과 적정한 조율이 필요할 것으로 생각된다.
설계안을 구현하기 위해 발주청과 시공사 및 감리업체뿐만 아니라 다양한 전문가들과 관계자들의 많은 노력이 있었다. 공사 초기에는 공모심사 때의 우려처럼 공사비 부족 문제가 대두되었다. 설계안을 떠나 당초 사업 초기에 책정된 기본 공사비가 턱없이 적었고, 발주처에서는 추후 공사를 시작하면서 추가 확보할 예정이었다. 하지만 추경에 여러 난관이 있었고, 토공사 중에 암반의 출현과 부지 후면의 옹벽공사 등으로 인하여 예산 규모는 더욱 더 커졌다. 발주처의 노력으로 다행히 추가 예산이 확보되었고, 여러 우여곡절이 있었지만 마침내 원안대로 건축될 수 있었다.
과거의 학교 유형에 익숙한 공사 현장에서 기존과 다른 공간구조를 가진 학교를 공사한다는 것은 시공사에게 큰 부담으로 다가오는 것이 현실이다. 모든 건축물이 그러하듯 원래 학교도 각기 다른 여건과 지향성에 따라 다른 모습을 가지는 것은 당연한 이치이다. 하지만 익숙한 학교모습을 생각하고 일단 입찰한 뒤에, 희박한 확률을 뚫고 낙찰을 받은 시공사들이 계획안을 다시 찬찬히 검토하면서 보이는 첫 반응은 당혹감이다. 그린스마트 미래학교 사업추진에 따라 점점 다양해지는 학교계획안을 감안할 때 공사 입찰방식이나 적정 공사비에 대한 좀 더 많은 연구와 고려가 필요할 것으로 생각된다.

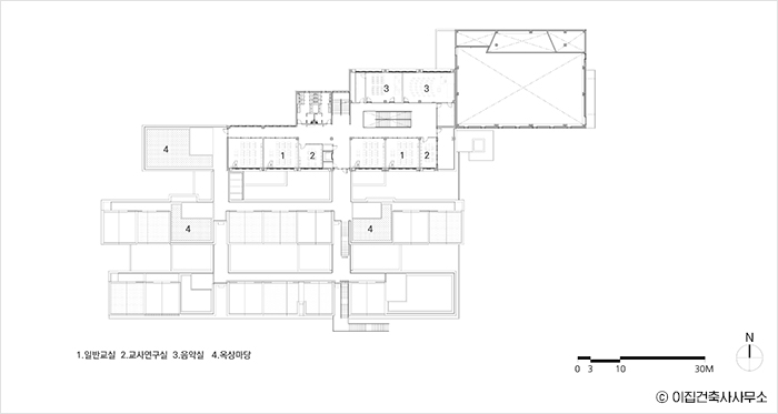
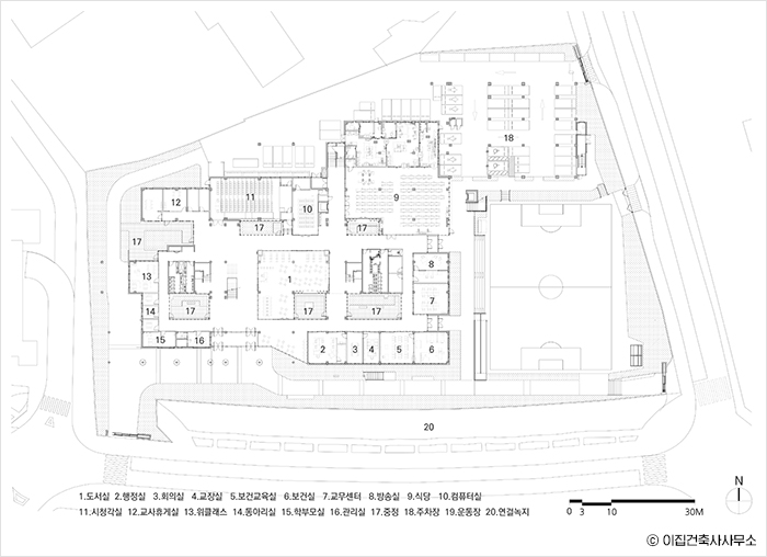
[1층 평면도] [1층 평면도]
[2층 평면도] [2층 평면도]
[3층 평면도] [3층 평면도]
[4층 평면도] [4층 평면도]
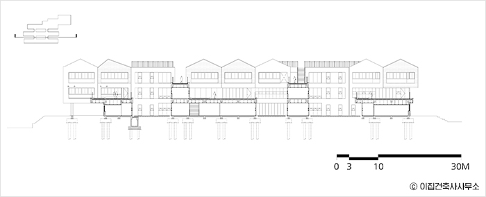
[종단면도] [종단면도]
[횡단면도] [횡단면도]

사용자의 고민과 노력으로 신길중학교의 지속적인 발전을 꿈꾸다

요즘에는 사용자 참여설계 발주 방식이 적극적으로 검토되고 확대되고 있다. 하지만 아직까지 신축 학교의 경우에는 공사 준공에 임박해서 교직원이 발령되기 때문에 사용자 참여설계의 여건이 조성되기 어렵다. 준공 즈음에 신길중학교의 교직원들이 발령받은 후 낯선 모습을 한 공간에서 학생들을 안전하게 보호하고 지도해야하는 부담감에 당혹스러워 했던 모습과 기존과는 다른 공간구조를 가진 학교에 대한 기대감이 교차되었던 모습이 눈에 선하다.
신길중학교는 아직 개교한지 1년도 되지 않아 안착되는 데에 긴 호홉이 필요하지만 구축된 학교 공간은 열정과 애정을 가진 교직원과 학생들의 고민과 노력으로 진화하고 있다. 아이들이 좋아하는 댄스연습실도 마련되었고 공용공간은 학생들이 직접 만든 소품으로 채워지고 있으며, 안전을 위한 시설보강도 진행되고 있다. 도서실 내부도 학교에서 별도로 조성하였고 교실에 있는 알록달록한 책걸상, 사물함, 화이트보드 등의 집기 역시 교직원들이 의견을 모아 직접 고르고 설치한 것이다. 각 층의 옥상마당도 각각 주제가 있는 테마마당으로 재조성할 예정이라고 한다. 원설계자로서 그 즐거운 여정에 참여하지 못하는 아쉬움은 있지만 사실 공간 구축의 완결과 진화는 결국 사용자의 몫이다. 어떠한 건물이든 준공된 직후의 무색무취한 건축공간은 실제 사용자의 자취로 인해 비로소 다채로운 생활공간으로 변모된다. 신길중학교 건축물의 가장 큰 의의인 '새로운 학교 공간구조의 유형'이 그와 같은 노력과 변화를 통해 잘 작동되고 발전하기를 기대한다.

[마을처럼 보이는 신길중학교 모습] [마을처럼 보이는 신길중학교 모습]
[고층아파트 속에 자리 잡은 신길중학교] [고층아파트 속에 자리 잡은 신길중학교]
[전면도로에서 바라본 신길중학교] [전면도로에서 바라본 신길중학교]
[이웃집과 같은 친근한 모습의 신길중학교] [이웃집과 같은 친근한 모습의 신길중학교]
공백스페이서
발행 정보
공백스페이서 국가건축정책위원회 네이버 블로그 바로가기 국가건축정책위원회 페이스북 바로가기 푸터 발행인 정보 저작권정보 : 본 뉴스레터의 모든 저작권리는 국가건축정책위원회가 보유하고 있습니다.
공백스페이서